БАЗОВАЯ КОМПЛЕКТАЦИЯ

КОРОБКА ДОМА
(фундамент - монолитная плита, стены - газоблок 300 мм, внутренние стены/ перегородки - газоблок 100 мм., перекрытие и лестница - монолитная, кровельный материал - металлочерепица)
Стоимость: 3 925 000 руб.

КОРОБКА ДОМА ПО БЕЗНАЛИЧНОМУ РАСЧЕТУ
Стоимость: 4 589 000 руб.
ТАК ЖЕ

Станция биологической очистки ТОПАС 5
Стоимость: 462 000 руб.
Окна 58 профиль, тройной стеклопакет
Стоимость: 377 000 руб.

Дверь входная с терморазрывом
Стоимость: 63 000 руб.

ДОПОЛНИТЕЛЬНАЯ КОМПЛЕКТАЦИЯ

Дополнительные опции
  • Штукатурка
  • Электрика
  • Отопление
  • Фасад
  • Подготовка земельного участка
  • Разводка воды и канализация
Все дополнительные опции рассчитываются индивидуально после адаптации проектного решения
Покажем уже построенные дома, подробно проконсультируем об особенностях этого проекта

СТОИМОСТЬ
от 4 млн

Или просто позвоните нам по номерам
+7 (914) 790-93 33
+7 (902) 480-92-13

КОМПЛЕКТАЦИИ И ЦЕНЫ

ВНЕШНИЙ ВИД

ПЛАНИРОВКА

ХАРАКТЕРИСТИКИ

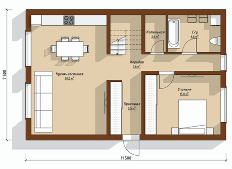
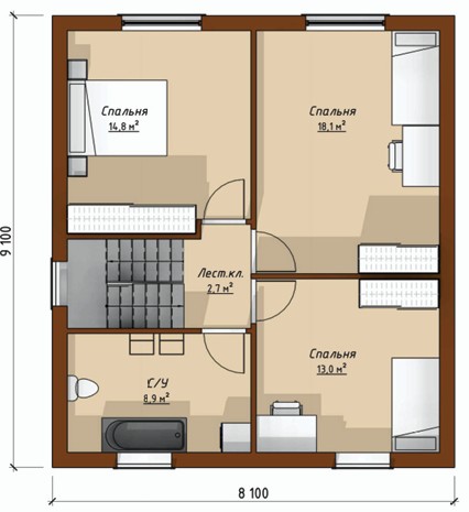
Кол-во этажей:  Общая площадь: 74 кв.м. 
Терраса: нет
Балкон: нет
Крыша: 2-скатная
Санузлы: 1
Кол-во спален: 4
Технология: газоблок

ПРОЕКТ U2-1

БАЗОВАЯ КОМПЛЕКТАЦИЯ

КОРОБКА ДОМА
(фундамент - монолитная плита, стены - газоблок 300 мм, внутренние стены/ перегородки - газоблок 100,200 мм., перекрытие и лестница - монолитная, кровельный материал - металлочерепица)
Стоимость: 3 880 000 руб.

КОРОБКА ДОМА ПО БЕЗНАЛИЧНОМУ РАСЧЕТУ
Стоимость: 4 535 000 руб.
ТАК ЖЕ

Станция биологической очистки ТОПАС 5
Стоимость: 462 000 руб.
Окна 58 профиль, тройной стеклопакет
Стоимость: 346 000 руб.

Дверь входная с терморазрывом
Стоимость: 63 000 руб.

ДОПОЛНИТЕЛЬНАЯ КОМПЛЕКТАЦИЯ

Дополнительные опции
  • Штукатурка
  • Электрика
  • Отопление
  • Фасад
  • Подготовка земельного участка
  • Разводка воды и канализация
Все дополнительные опции рассчитываются индивидуально после адаптации проектного решения
Покажем уже построенные дома, подробно проконсультируем об особенностях этого проекта

СТОИМОСТЬ
от 4 млн

Или просто позвоните нам по номерам
+7 (914) 790-93 33
+7 (902) 480-92-13

КОМПЛЕКТАЦИИ И ЦЕНЫ

ВНЕШНИЙ ВИД

ПЛАНИРОВКА

ХАРАКТЕРИСТИКИ

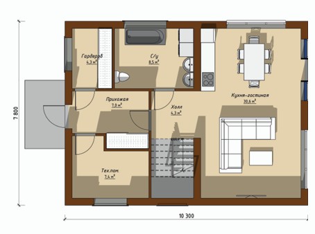
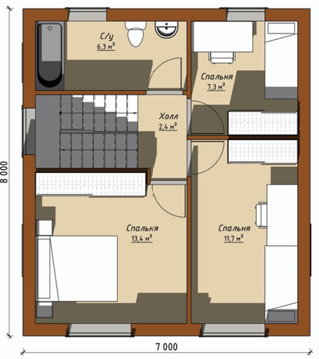
Кол-во этажей:  Общая площадь: 79 кв.м. 
Терраса: нет
Балкон: нет
Крыша: 2-скатная
Санузлы: 2
Кол-во спален: 2
Технология: газоблок

ПРОЕКТ U2-2

БАЗОВАЯ КОМПЛЕКТАЦИЯ

КОРОБКА ДОМА
(фундамент - монолитная плита, стены - газоблок 300 мм, внутренние стены/ перегородки - газоблок 100,200 мм., перекрытие и лестница - монолитная, кровельный материал - металлочерепица)
Стоимость: 4 620 000 руб.

КОРОБКА ДОМА ПО БЕЗНАЛИЧНОМУ РАСЧЕТУ
Стоимость: 5 440 000 руб.
ТАК ЖЕ

Станция биологической очистки ТОПАС 5
Стоимость: 462 000 руб.
Окна 58 профиль, тройной стеклопакет
Стоимость: 405 000 руб.

Дверь входная с терморазрывом
Стоимость: 63 000 руб.

ДОПОЛНИТЕЛЬНАЯ КОМПЛЕКТАЦИЯ

Дополнительные опции
  • Штукатурка
  • Электрика
  • Отопление
  • Фасад
  • Подготовка земельного участка
  • Разводка воды и канализация
Все дополнительные опции рассчитываются индивидуально после адаптации проектного решения
Покажем уже построенные дома, подробно проконсультируем об особенностях этого проекта

СТОИМОСТЬ
от 4,6 млн

Или просто позвоните нам по номерам
+7 (914) 790-93 33
+7 (902) 480-92-13

КОМПЛЕКТАЦИИ И ЦЕНЫ

ВНЕШНИЙ ВИД

ПЛАНИРОВКА

ХАРАКТЕРИСТИКИ

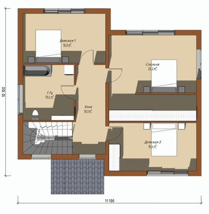
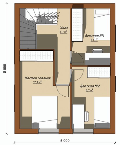
Кол-во этажей:  Общая площадь: 91 кв.м. 
Терраса: нет
Балкон: нет
Крыша: 2-скатная
Санузлы: 2
Кол-во спален: 4
Технология: газоблок

ПРОЕКТ U2-3

БАЗОВАЯ КОМПЛЕКТАЦИЯ

КОРОБКА ДОМА
(фундамент - монолитная плита, стены - газоблок 300 мм, внутренние стены/ перегородки - газоблок 100,200 мм., перекрытие и лестница - монолитная, кровельный материал - металлочерепица)
Стоимость: 5 300 000 руб.

КОРОБКА ДОМА ПО БЕЗНАЛИЧНОМУ РАСЧЕТУ
Стоимость: 6 200 000 руб.
ТАК ЖЕ

Станция биологической очистки ТОПАС 5
Стоимость: 462 000 руб.
Окна 58 профиль, тройной стеклопакет
Стоимость: 490 000 руб.

Дверь входная с терморазрывом
Стоимость: 63 000 руб.

ДОПОЛНИТЕЛЬНАЯ КОМПЛЕКТАЦИЯ

Дополнительные опции
  • Штукатурка
  • Электрика
  • Отопление
  • Фасад
  • Подготовка земельного участка
  • Разводка воды и канализация
Все дополнительные опции рассчитываются индивидуально после адаптации проектного решения
Покажем уже построенные дома, подробно проконсультируем об особенностях этого проекта

СТОИМОСТЬ
от 5,3 млн

Или просто позвоните нам по номерам
+7 (914) 790-93 33
+7 (902) 480-92-13

КОМПЛЕКТАЦИИ И ЦЕНЫ

ВНЕШНИЙ ВИД

ПЛАНИРОВКА

ХАРАКТЕРИСТИКИ

Кол-во этажей:  Общая площадь: 120 кв.м. 
Терраса: да
Балкон: нет
Крыша: 2-скатная
Санузлы: 2
Кол-во спален: 4
Технология: газоблок

ПРОЕКТ U2-4

БАЗОВАЯ КОМПЛЕКТАЦИЯ

КОРОБКА ДОМА
(фундамент - монолитная плита, стены - газоблок 300 мм, внутренние стены/ перегородки - газоблок 100,200 мм., перекрытие и лестница - монолитная, кровельный материал - металлочерепица)
Стоимость: 5 600 000 руб.

КОРОБКА ДОМА ПО БЕЗНАЛИЧНОМУ РАСЧЕТУ
Стоимость: 6 550 000 руб.
ТАК ЖЕ

Станция биологической очистки ТОПАС 5
Стоимость: 462 000 руб.
Окна 58 профиль, тройной стеклопакет
Стоимость: 511 000 руб.

Дверь входная с терморазрывом
Стоимость: 63 000 руб.

ДОПОЛНИТЕЛЬНАЯ КОМПЛЕКТАЦИЯ

Дополнительные опции
  • Штукатурка
  • Электрика
  • Отопление
  • Фасад
  • Подготовка земельного участка
  • Разводка воды и канализация
Все дополнительные опции рассчитываются индивидуально после адаптации проектного решения
Покажем уже построенные дома, подробно проконсультируем об особенностях этого проекта

СТОИМОСТЬ
от 5,6 млн

Или просто позвоните нам по номерам
+7 (914) 790-93 33
+7 (902) 480-92-13

КОМПЛЕКТАЦИИ И ЦЕНЫ

ВНЕШНИЙ ВИД

ПЛАНИРОВКА

ХАРАКТЕРИСТИКИ

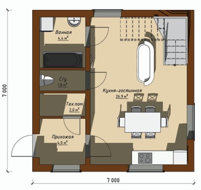
Кол-во этажей:  Общая площадь: 94 кв.м. 
Терраса: нет
Балкон: нет
Крыша: 4-скатная
Санузлы: 2
Кол-во спален: 5
Технология: газоблок

ПРОЕКТ U2-5

БАЗОВАЯ КОМПЛЕКТАЦИЯ

КОРОБКА ДОМА
(фундамент - монолитная плита, стены - газоблок 300 мм, внутренние стены/ перегородки - газоблок 100,200 мм., перекрытие и лестница - монолитная, кровельный материал - мягкая черепица)
Стоимость: 5 700 000 руб.

КОРОБКА ДОМА ПО БЕЗНАЛИЧНОМУ РАСЧЕТУ
Стоимость: 6 700 000 руб.
ТАК ЖЕ

Станция биологической очистки ТОПАС 5
Стоимость: 462 000 руб.
Окна 58 профиль, тройной стеклопакет
Стоимость: 911 000 руб.

Дверь входная с терморазрывом
Стоимость: 63 000 руб.

ДОПОЛНИТЕЛЬНАЯ КОМПЛЕКТАЦИЯ

Дополнительные опции
  • Штукатурка
  • Электрика
  • Отопление
  • Фасад
  • Подготовка земельного участка
  • Разводка воды и канализация
Все дополнительные опции рассчитываются индивидуально после адаптации проектного решения
Покажем уже построенные дома, подробно проконсультируем об особенностях этого проекта

СТОИМОСТЬ
от 5,7 млн

Или просто позвоните нам по номерам
+7 (914) 790-93 33
+7 (902) 480-92-13

КОМПЛЕКТАЦИИ И ЦЕНЫ

ВНЕШНИЙ ВИД

ПЛАНИРОВКА

ХАРАКТЕРИСТИКИ

Кол-во этажей:  Общая площадь: 114 кв.м. 
Терраса: нет
Балкон: нет
Крыша: 4-скатная
Санузлы: 2
Кол-во спален: 4
Технология: газоблок

ПРОЕКТ U2-6

БАЗОВАЯ КОМПЛЕКТАЦИЯ

КОРОБКА ДОМА
(фундамент - монолитная плита, стены - газоблок 300 мм, внутренние стены/ перегородки - газоблок 100,200 мм., перекрытие и лестница - монолитная, кровельный материал - металлочерепица)
Стоимость: 5 470 000 руб.

КОРОБКА ДОМА ПО БЕЗНАЛИЧНОМУ РАСЧЕТУ
Стоимость: 6 400 000 руб.
ТАК ЖЕ

Станция биологической очистки ТОПАС 5
Стоимость: 462 000 руб.
Окна 58 профиль, тройной стеклопакет
Стоимость: 592 000 руб.

Дверь входная с терморазрывом
Стоимость: 63 000 руб.

ДОПОЛНИТЕЛЬНАЯ КОМПЛЕКТАЦИЯ

Дополнительные опции
  • Штукатурка
  • Электрика
  • Отопление
  • Фасад
  • Подготовка земельного участка
  • Разводка воды и канализация
Все дополнительные опции рассчитываются индивидуально после адаптации проектного решения
Покажем уже построенные дома, подробно проконсультируем об особенностях этого проекта

СТОИМОСТЬ
от 5,5 млн

Или просто позвоните нам по номерам
+7 (914) 790-93 33
+7 (902) 480-92-13

КОМПЛЕКТАЦИИ И ЦЕНЫ

ВНЕШНИЙ ВИД

ПЛАНИРОВКА

ХАРАКТЕРИСТИКИ

Кол-во этажей:  Общая площадь: 111 кв.м. 
Терраса: нет
Балкон: нет
Крыша: 4-скатная
Санузлы: 2
Кол-во спален: 4
Технология: газоблок

ПРОЕКТ U2-7

БАЗОВАЯ КОМПЛЕКТАЦИЯ

КОРОБКА ДОМА
(фундамент - монолитная плита, стены - газоблок 300 мм, внутренние стены/ перегородки - газоблок 100,200 мм., перекрытие и лестница - монолитная, кровельный материал - металлочерепица)
Стоимость: 5 830 000 руб.

КОРОБКА ДОМА ПО БЕЗНАЛИЧНОМУ РАСЧЕТУ
Стоимость: 6 813 000 руб.
ТАК ЖЕ

Станция биологической очистки ТОПАС 5
Стоимость: 462 000 руб.
Окна 58 профиль, тройной стеклопакет
Стоимость: 999 000 руб.

Дверь входная с терморазрывом
Стоимость: 63 000 руб.

ДОПОЛНИТЕЛЬНАЯ КОМПЛЕКТАЦИЯ

Дополнительные опции
  • Штукатурка
  • Электрика
  • Отопление
  • Фасад
  • Подготовка земельного участка
  • Разводка воды и канализация
Все дополнительные опции рассчитываются индивидуально после адаптации проектного решения
Покажем уже построенные дома, подробно проконсультируем об особенностях этого проекта

СТОИМОСТЬ
от 5,8 млн

Или просто позвоните нам по номерам
+7 (914) 790-93 33
+7 (902) 480-92-13

КОМПЛЕКТАЦИИ И ЦЕНЫ

ВНЕШНИЙ ВИД

ПЛАНИРОВКА

ХАРАКТЕРИСТИКИ

Кол-во этажей:  Общая площадь: 123 кв.м. 
Терраса: нет
Балкон: да
Крыша: 2-скатная
Санузлы: 2
Кол-во спален: 3
Технология: газоблок

ПРОЕКТ U2-8

БАЗОВАЯ КОМПЛЕКТАЦИЯ

КОРОБКА ДОМА
(фундамент - монолитная плита, стены - газоблок 300 мм, внутренние стены/ перегородки - газоблок 100,200 мм., перекрытие и лестница - монолитная, кровельный материал - мягкая черепица)
Стоимость: 6 800 000 руб.

КОРОБКА ДОМА ПО БЕЗНАЛИЧНОМУ РАСЧЕТУ
Стоимость: 7 980 000 руб.
ТАК ЖЕ

Станция биологической очистки ТОПАС 5
Стоимость: 462 000 руб.
Окна 58 профиль, тройной стеклопакет
Стоимость: 645 000 руб.

Дверь входная с терморазрывом
Стоимость: 63 000 руб.

ДОПОЛНИТЕЛЬНАЯ КОМПЛЕКТАЦИЯ

Дополнительные опции
  • Штукатурка
  • Электрика
  • Отопление
  • Фасад
  • Подготовка земельного участка
  • Разводка воды и канализация
Все дополнительные опции рассчитываются индивидуально после адаптации проектного решения
Покажем уже построенные дома, подробно проконсультируем об особенностях этого проекта

СТОИМОСТЬ
от 6,8 млн

Или просто позвоните нам по номерам
+7 (914) 790-93 33
+7 (902) 480-92-13

КОМПЛЕКТАЦИИ И ЦЕНЫ

ВНЕШНИЙ ВИД

ПЛАНИРОВКА

ХАРАКТЕРИСТИКИ

Кол-во этажей:  Общая площадь: 141 кв.м. 
Терраса: нет
Гараж: да
Крыша: 2-скатная
Санузлы: 2
Кол-во спален: 4
Технология: газоблок

ПРОЕКТ U2-9

БАЗОВАЯ КОМПЛЕКТАЦИЯ

КОРОБКА ДОМА
(фундамент - монолитная плита, стены - газоблок 300 мм, внутренние стены/ перегородки - газоблок 100,200 мм., перекрытие и лестница - монолитная, кровельный материал - металлочерепица)
Стоимость: 5 320 000 руб.

КОРОБКА ДОМА ПО БЕЗНАЛИЧНОМУ РАСЧЕТУ
Стоимость: 6 200 000 руб.
ТАК ЖЕ

Станция биологической очистки ТОПАС 5
Стоимость: 462 000 руб.
Окна 58 профиль, тройной стеклопакет
Стоимость: 842 000 руб.

Дверь входная с терморазрывом
Стоимость: 208 000 руб.

ДОПОЛНИТЕЛЬНАЯ КОМПЛЕКТАЦИЯ

Дополнительные опции
  • Штукатурка
  • Электрика
  • Отопление
  • Фасад
  • Подготовка земельного участка
  • Разводка воды и канализация
Все дополнительные опции рассчитываются индивидуально после адаптации проектного решения
Покажем уже построенные дома, подробно проконсультируем об особенностях этого проекта

СТОИМОСТЬ
от 5,4 млн

Или просто позвоните нам по номерам
+7 (914) 790-93 33
+7 (902) 480-92-13

КОМПЛЕКТАЦИИ И ЦЕНЫ

ВНЕШНИЙ ВИД

ПЛАНИРОВКА

ХАРАКТЕРИСТИКИ

Кол-во этажей:  Общая площадь: 114 кв.м. 
Терраса: нет
Гараж: нет
Крыша: 2-скатная
Санузлы: 2
Кол-во спален: 2
Технология: газоблок

ПРОЕКТ U2-10

БАЗОВАЯ КОМПЛЕКТАЦИЯ

КОРОБКА ДОМА
(фундамент - монолитная плита, стены - газоблок 300 мм, внутренние стены/ перегородки - газоблок 100,200 мм., перекрытие и лестница - монолитная, кровельный материал - металлочерепица)
Стоимость: 5 880 000 руб.

КОРОБКА ДОМА ПО БЕЗНАЛИЧНОМУ РАСЧЕТУ
Стоимость: 6 880 000 руб.
ТАК ЖЕ

Станция биологической очистки ТОПАС 5
Стоимость: 462 000 руб.
Окна 58 профиль, тройной стеклопакет
Стоимость: 946 000 руб.

Дверь входная с терморазрывом
Стоимость: 63 000 руб.

ДОПОЛНИТЕЛЬНАЯ КОМПЛЕКТАЦИЯ

Дополнительные опции
  • Штукатурка
  • Электрика
  • Отопление
  • Фасад
  • Подготовка земельного участка
  • Разводка воды и канализация
Все дополнительные опции рассчитываются индивидуально после адаптации проектного решения
Покажем уже построенные дома, подробно проконсультируем об особенностях этого проекта

СТОИМОСТЬ
от 5,9 млн

Или просто позвоните нам по номерам
+7 (914) 790-93 33
+7 (902) 480-92-13

КОМПЛЕКТАЦИИ И ЦЕНЫ

ВНЕШНИЙ ВИД

ПЛАНИРОВКА

ХАРАКТЕРИСТИКИ

Кол-во этажей:  Общая площадь: 133 кв.м. 
Терраса: нет
Балкон: да
Крыша: 2-скатная
Санузлы: 2
Кол-во спален: 3
Технология: газоблок

ПРОЕКТ U2-11

БАЗОВАЯ КОМПЛЕКТАЦИЯ

КОРОБКА ДОМА
(фундамент - монолитная плита, стены - газоблок 300 мм, внутренние стены/ перегородки - газоблок 100,200 мм., перекрытие и лестница - монолитная, кровельный материал - металлочерепица)
Стоимость: 5 700 000 руб.

КОРОБКА ДОМА ПО БЕЗНАЛИЧНОМУ РАСЧЕТУ
Стоимость: 6 700 000 руб.
ТАК ЖЕ

Станция биологической очистки ТОПАС 5
Стоимость: 462 000 руб.
Окна 58 профиль, тройной стеклопакет
Стоимость: 726 000 руб.

Дверь входная с терморазрывом
Стоимость: 63 000 руб.

ДОПОЛНИТЕЛЬНАЯ КОМПЛЕКТАЦИЯ

Дополнительные опции
  • Штукатурка
  • Электрика
  • Отопление
  • Фасад
  • Подготовка земельного участка
  • Разводка воды и канализация
Все дополнительные опции рассчитываются индивидуально после адаптации проектного решения
Покажем уже построенные дома, подробно проконсультируем об особенностях этого проекта

СТОИМОСТЬ
от 5,7 млн

Или просто позвоните нам по номерам
+7 (914) 790-93 33
+7 (902) 480-92-13

КОМПЛЕКТАЦИИ И ЦЕНЫ

ВНЕШНИЙ ВИД

ПЛАНИРОВКА

ХАРАКТЕРИСТИКИ

Кол-во этажей:  Общая площадь: 119 кв.м. 
Терраса: нет
Балкон: нет
Крыша: 2-скатная
Санузлы: 2
Кол-во спален: 4
Технология: газоблок

ПРОЕКТ U2-12

БАЗОВАЯ КОМПЛЕКТАЦИЯ

КОРОБКА ДОМА
(фундамент - монолитная плита, стены - газоблок 300 мм, внутренние стены/ перегородки - газоблок 100,200 мм., перекрытие и лестница - монолитная, кровельный материал - металлочерепица)
Стоимость: 6 200 000 руб.

КОРОБКА ДОМА ПО БЕЗНАЛИЧНОМУ РАСЧЕТУ
Стоимость: 7 200 000 руб.
ТАК ЖЕ

Станция биологической очистки ТОПАС 5
Стоимость: 462 000 руб.
Окна 58 профиль, тройной стеклопакет
Стоимость: 1 470 000 руб.

Дверь входная с терморазрывом
Стоимость: 63 000 руб.

ДОПОЛНИТЕЛЬНАЯ КОМПЛЕКТАЦИЯ

Дополнительные опции
  • Штукатурка
  • Электрика
  • Отопление
  • Фасад
  • Подготовка земельного участка
  • Разводка воды и канализация
Все дополнительные опции рассчитываются индивидуально после адаптации проектного решения
Покажем уже построенные дома, подробно проконсультируем об особенностях этого проекта

СТОИМОСТЬ
от 6,2 млн

Или просто позвоните нам по номерам
+7 (914) 790-93 33
+7 (902) 480-92-13

КОМПЛЕКТАЦИИ И ЦЕНЫ

ВНЕШНИЙ ВИД

ПЛАНИРОВКА

ХАРАКТЕРИСТИКИ

Кол-во этажей:  Общая площадь: 134 кв.м. 
Терраса: нет
Балкон: нет
Крыша: 2-скатная
Санузлы: 1
Кол-во спален: 4
Технология: газоблок

ПРОЕКТ U2-13

БАЗОВАЯ КОМПЛЕКТАЦИЯ

КОРОБКА ДОМА
(фундамент - монолитная плита, стены - газоблок 300 мм, внутренние стены/ перегородки - газоблок 100,200 мм., перекрытие и лестница - монолитная, кровельный материал - металлочерепица)
Стоимость: 6 200 000 руб.

КОРОБКА ДОМА ПО БЕЗНАЛИЧНОМУ РАСЧЕТУ
Стоимость: 7 200 000 руб.
ТАК ЖЕ

Станция биологической очистки ТОПАС 5
Стоимость: 462 000 руб.
Окна 58 профиль, тройной стеклопакет
Стоимость: 685 000 руб.

Дверь входная с терморазрывом
Стоимость: 63 000 руб.

ДОПОЛНИТЕЛЬНАЯ КОМПЛЕКТАЦИЯ

Дополнительные опции
  • Штукатурка
  • Электрика
  • Отопление
  • Фасад
  • Подготовка земельного участка
  • Разводка воды и канализация
Все дополнительные опции рассчитываются индивидуально после адаптации проектного решения
Покажем уже построенные дома, подробно проконсультируем об особенностях этого проекта

СТОИМОСТЬ
от 6,2 млн

Или просто позвоните нам по номерам
+7 (914) 790-93 33
+7 (902) 480-92-13

КОМПЛЕКТАЦИИ И ЦЕНЫ

ВНЕШНИЙ ВИД

ПЛАНИРОВКА

ХАРАКТЕРИСТИКИ

Кол-во этажей:  Общая площадь: 138 кв.м. 
Терраса: нет
Балкон: нет
Крыша: 2-скатная
Санузлы: 2
Кол-во спален: 4
Технология: газоблок

ПРОЕКТ U2-14

БАЗОВАЯ КОМПЛЕКТАЦИЯ

КОРОБКА ДОМА
(фундамент - монолитная плита, стены - газоблок 300 мм, внутренние стены/ перегородки - газоблок 100,200 мм., перекрытие и лестница - монолитная, кровельный материал - металлочерепица)
Стоимость: 6 000 000 руб.

КОРОБКА ДОМА ПО БЕЗНАЛИЧНОМУ РАСЧЕТУ
Стоимость: 7 000 000 руб.
ТАК ЖЕ

Станция биологической очистки ТОПАС 5
Стоимость: 462 000 руб.
Окна 58 профиль, тройной стеклопакет
Стоимость: 1 130 000 руб.

Дверь входная с терморазрывом
Стоимость: 63 000 руб.

ДОПОЛНИТЕЛЬНАЯ КОМПЛЕКТАЦИЯ

Дополнительные опции
  • Штукатурка
  • Электрика
  • Отопление
  • Фасад
  • Подготовка земельного участка
  • Разводка воды и канализация
Все дополнительные опции рассчитываются индивидуально после адаптации проектного решения
Покажем уже построенные дома, подробно проконсультируем об особенностях этого проекта

СТОИМОСТЬ
от 6 млн

Или просто позвоните нам по номерам
+7 (914) 790-93 33
+7 (902) 480-92-13

КОМПЛЕКТАЦИИ И ЦЕНЫ

ВНЕШНИЙ ВИД

ПЛАНИРОВКА

ХАРАКТЕРИСТИКИ

Кол-во этажей:  Общая площадь: 137 кв.м. 
Терраса: нет
Балкон: нет
Крыша: 2-скатная
Санузлы: 2
Кол-во спален: 4
Технология: газоблок

ПРОЕКТ U2-15

БАЗОВАЯ КОМПЛЕКТАЦИЯ

КОРОБКА ДОМА
(фундамент - монолитная плита, стены - газоблок 300 мм, внутренние стены/ перегородки - газоблок 100,200 мм., перекрытие и лестница - монолитная, кровельный материал - металлочерепица)
Стоимость: 7 150 000 руб.

КОРОБКА ДОМА ПО БЕЗНАЛИЧНОМУ РАСЧЕТУ
Стоимость: 8 400 000 руб.
ТАК ЖЕ

Станция биологической очистки ТОПАС 5
Стоимость: 462 000 руб.
Окна 58 профиль, тройной стеклопакет
Стоимость: 1 365 000 руб.

Дверь входная с терморазрывом
Стоимость: 63 000 руб.

ДОПОЛНИТЕЛЬНАЯ КОМПЛЕКТАЦИЯ

Дополнительные опции
  • Штукатурка
  • Электрика
  • Отопление
  • Фасад
  • Подготовка земельного участка
  • Разводка воды и канализация
Все дополнительные опции рассчитываются индивидуально после адаптации проектного решения
Покажем уже построенные дома, подробно проконсультируем об особенностях этого проекта

СТОИМОСТЬ
от 7,1 млн

Или просто позвоните нам по номерам
+7 (914) 790-93 33
+7 (902) 480-92-13

КОМПЛЕКТАЦИИ И ЦЕНЫ

ВНЕШНИЙ ВИД

ПЛАНИРОВКА

ХАРАКТЕРИСТИКИ

Кол-во этажей:  Общая площадь: 145 кв.м. 
Терраса: нет
Балкон: нет
Крыша: 4-скатная
Санузлы: 2
Кол-во спален: 4
Технология: газоблок

ПРОЕКТ U2-16

БАЗОВАЯ КОМПЛЕКТАЦИЯ

КОРОБКА ДОМА
(фундамент - монолитная плита, стены - газоблок 300 мм, внутренние стены/ перегородки - газоблок 100,200 мм., перекрытие и лестница - монолитная, кровельный материал - мягкая черепица)
Стоимость: 6 900 000 руб.

КОРОБКА ДОМА ПО БЕЗНАЛИЧНОМУ РАСЧЕТУ
Стоимость: 8 100 000 руб.
ТАК ЖЕ

Станция биологической очистки ТОПАС 5
Стоимость: 462 000 руб.
Окна 58 профиль, тройной стеклопакет
Стоимость: 1 255 000 руб.

Дверь входная с терморазрывом (2шт)
Стоимость: 126 000 руб.

ДОПОЛНИТЕЛЬНАЯ КОМПЛЕКТАЦИЯ

Дополнительные опции
  • Штукатурка
  • Электрика
  • Отопление
  • Фасад
  • Подготовка земельного участка
  • Разводка воды и канализация
Все дополнительные опции рассчитываются индивидуально после адаптации проектного решения
Покажем уже построенные дома, подробно проконсультируем об особенностях этого проекта

СТОИМОСТЬ
от 6,9 млн

Или просто позвоните нам по номерам
+7 (914) 790-93 33
+7 (902) 480-92-13

КОМПЛЕКТАЦИИ И ЦЕНЫ

ВНЕШНИЙ ВИД

ПЛАНИРОВКА

ХАРАКТЕРИСТИКИ

Кол-во этажей:  Общая площадь: 162 кв.м. 
Терраса: нет
Балкон: да
Крыша: 4-скатная
Санузлы: 2
Кол-во спален: 3
Технология: газоблок

ПРОЕКТ U2-17

БАЗОВАЯ КОМПЛЕКТАЦИЯ

КОРОБКА ДОМА
(фундамент - монолитная плита, стены - газоблок 300 мм, внутренние стены/ перегородки - газоблок 100,200 мм., перекрытие и лестница - монолитная, кровельный материал - мягкая черепица)
Стоимость: 7 500 000 руб.

КОРОБКА ДОМА ПО БЕЗНАЛИЧНОМУ РАСЧЕТУ
Стоимость: 8 800 000 руб.
ТАК ЖЕ

Станция биологической очистки ТОПАС 5
Стоимость: 462 000 руб.
Окна 58 профиль, тройной стеклопакет
Стоимость: 1 590 000 руб.

Дверь входная с терморазрывом
Стоимость: 63 000 руб.

ДОПОЛНИТЕЛЬНАЯ КОМПЛЕКТАЦИЯ

Дополнительные опции
  • Штукатурка
  • Электрика
  • Отопление
  • Фасад
  • Подготовка земельного участка
  • Разводка воды и канализация
Все дополнительные опции рассчитываются индивидуально после адаптации проектного решения
Покажем уже построенные дома, подробно проконсультируем об особенностях этого проекта

СТОИМОСТЬ
от 7,5 млн

Или просто позвоните нам по номерам
+7 (914) 790-93 33
+7 (902) 480-92-13

КОМПЛЕКТАЦИИ И ЦЕНЫ

ВНЕШНИЙ ВИД

ПЛАНИРОВКА

ХАРАКТЕРИСТИКИ

Кол-во этажей:  Общая площадь: 150 кв.м. 
Терраса: нет
Веранда: да
Крыша: 2-скатная
Санузлы: 2
Кол-во спален: 4
Технология: газоблок

ПРОЕКТ U2-18

БАЗОВАЯ КОМПЛЕКТАЦИЯ

КОРОБКА ДОМА
(фундамент - монолитная плита, стены - газоблок 300 мм, внутренние стены/ перегородки - газоблок 100,200 мм., перекрытие и лестница - монолитная, кровельный материал - мягкая черепица)
Стоимость: 7 000 000 руб.

КОРОБКА ДОМА ПО БЕЗНАЛИЧНОМУ РАСЧЕТУ
Стоимость: 8 200 000 руб.
ТАК ЖЕ

Станция биологической очистки ТОПАС 5
Стоимость: 462 000 руб.
Окна 58 профиль, тройной стеклопакет
Стоимость: 1 618 000 руб.

Дверь входная с терморазрывом (2шт)
Стоимость: 126 000 руб.

ДОПОЛНИТЕЛЬНАЯ КОМПЛЕКТАЦИЯ

Дополнительные опции
  • Штукатурка
  • Электрика
  • Отопление
  • Фасад
  • Подготовка земельного участка
  • Разводка воды и канализация
Все дополнительные опции рассчитываются индивидуально после адаптации проектного решения
Покажем уже построенные дома, подробно проконсультируем об особенностях этого проекта

СТОИМОСТЬ
от 7 млн

Или просто позвоните нам по номерам
+7 (914) 790-93 33
+7 (902) 480-92-13

КОМПЛЕКТАЦИИ И ЦЕНЫ

ВНЕШНИЙ ВИД

ПЛАНИРОВКА

ХАРАКТЕРИСТИКИ

Кол-во этажей:  Общая площадь: 150 кв.м. 
Терраса: нет
Веранда: да
Крыша: 4-скатная
Санузлы: 2
Кол-во спален: 4
Технология: газоблок

ПРОЕКТ U2-19