Дмитрий и Ольга — семейная пара с двумя детьми, Ильей (10 лет) и Софией (7 лет). На первом этаже просторная кухня-гостиная, где они проводят время вместе, кабинет для работы и гостевая комната для бабушки. Второй этаж — личное пространство семьи: детские с рабочими зонами, спальня родителей с гардеробной и балконом. В доме есть прачечная, кладовая для спортинвентаря и терраса для летних вечеров. Уют, функциональность и комфорт для активной семьи!
Покажем уже построенные дома, подробно проконсультируем об особенностях этого проекта
СТОИМОСТЬ
от 15 млн
Или просто позвоните нам по номерам
+7 (914) 790-93 33
+7 (902) 480-92-13
+7 (914) 790-93 33
+7 (902) 480-92-13
О ДОМЕ
ВНЕШНИЙ ВИД
ПЛАНИРОВКА
ХАРАКТЕРИСТИКИ
Кол-во этажей: 2 Общая площадь: 192,9 кв.м.
Терраса: есть
Крыша: плоская
Санузлы: 2
Кол-во спален: 5
ПРОЕКТ ДОМА ДП-1
Алексей и Дарья — молодая пара, работающая удаленно. Алексей — IT-специалист, Дарья — иллюстратор. Просторная кухня-гостиная (44 м²) — центр их жизни: утром здесь аромат кофе, днем — работа за ноутбуками, вечером — встречи с друзьями. У Дарьи отдельная мастерская в светлой детской (13 м²), пока в семье нет детей. Алексей обустроил рабочее место в мастер-спальне (16 м²). Прачечная (3 м²) и гардеробные помогают сохранять порядок, а на террасе они отдыхают после насыщенного дня. Дом для комфорта, уюта и вдохновения!
Покажем уже построенные дома, подробно проконсультируем об особенностях этого проекта
СТОИМОСТЬ
от 7 млн
Или просто позвоните нам по номерам
+7 (914) 790-93 33
+7 (902) 480-92-13
+7 (914) 790-93 33
+7 (902) 480-92-13
О ДОМЕ
ВНЕШНИЙ ВИД
ПЛАНИРОВКА
ХАРАКТЕРИСТИКИ
Кол-во этажей: 1 Общая площадь: 76 кв.м.
Терраса: есть
Крыша: 2-скатная
Санузлы: 2
Кол-во спален: 2
ПРОЕКТ ДОМА ДП-2
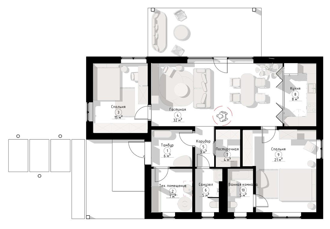
Иван и Екатерина — пара, мечтавшая о просторном и уютном доме. Иван работает архитектором, а Екатерина ведет кулинарный блог. Кухня-гостиная (43 м²) стала сердцем дома — здесь Катя готовит новые блюда и записывает рецепты. У них две спальни (17 м² каждая): одна — для них, вторая пока гостевая, но в будущем — детская. Мастер-спальня (23 м²) с отдельной гардеробной — место уединения и отдыха. Практичные зоны: постирочная, техпомещение, удобные санузлы помогают поддерживать порядок. Этот дом создан для комфорта, вдохновения и теплых встреч!
Покажем уже построенные дома, подробно проконсультируем об особенностях этого проекта
СТОИМОСТЬ
от 8 млн
Или просто позвоните нам по номерам
+7 (914) 790-93 33
+7 (902) 480-92-13
+7 (914) 790-93 33
+7 (902) 480-92-13
О ДОМЕ
ВНЕШНИЙ ВИД
ПЛАНИРОВКА
ХАРАКТЕРИСТИКИ
Кол-во этажей: 1 Общая площадь: 83 кв.м.
Терраса: есть
Крыша: 4-скатная
Санузлы: 2
Кол-во спален: 3
ПРОЕКТ ДОМА ДП-3
Покажем уже построенные дома, подробно проконсультируем об особенностях этого проекта
СТОИМОСТЬ
от 6,5 млн
Или просто позвоните нам по номерам
+7 (914) 790-93 33
+7 (902) 480-92-13
+7 (914) 790-93 33
+7 (902) 480-92-13
ВНЕШНИЙ ВИД
ПЛАНИРОВКА
ХАРАКТЕРИСТИКИ
Кол-во этажей: 1 Общая площадь: 71 кв.м.
Терраса: есть
Крыша: 2-скатная
Санузлы: 2
Кол-во спален: 2
ПРОЕКТ ДОМА ДП-4
ПОЛУЧИТЕ ВАРИАНТЫ ЗА 30 МИНУТ
ответьте на вопросы ниже, и исходя из них мы предложим вам оптимальный дом для строительства с подробным расчетом, в том числе предложим уже построенные новые дома, соответствующие Вашим пожеланиям
БЫСТРЫЙ ПОДБОР
выберите раздел и заполните нужную форму, мы оперативно подберем для Вас лучшие варианты от надежных застройщиков. Никаких комиссий - это бесплатно!
ЗАЯВКА НА СТРОИТЕЛЬСТВО ДОМА
Заполните все поля ниже и мы подберем Вам проект у надежных партнеров застройщиков, который оптимально соответствует Вашим пожеланиям.
Или просто напишите нам в WhatsApp и расскажите о своих пожеланиях. Подбор будет быстрый и точный, без навязывания лишнего.
ЗАПОЛНИТЕ ПОЛЯ НИЖЕ
ЗАЯВКА НА ПОДБОР ДОМА В КОТТЕДЖНЫХ ПОСЕЛКАХ
Заполните все поля ниже и мы подберем Вам готовый дом в коттеджном поселке у надежных партнеров застройщиков, который оптимально соответствует Вашим пожеланиям.
Или просто напишите нам в WhatsApp и расскажите о своих пожеланиях. Подбор будет быстрый и точный, без навязывания лишнего.
ЗАПОЛНИТЕ ПОЛЯ НИЖЕ
ВСЕГДА НА СВЯЗИ ДЛЯ ВАС
МЛЯВАЯ
ЮЛИЯ
ЮЛИЯ
координатор проекта АМС,
многолетний эксперт в сфере строительных
технологий и контроля качества ИЖС,
ведущий специалист по работе с заказчиками
многолетний эксперт в сфере строительных
технологий и контроля качества ИЖС,
ведущий специалист по работе с заказчиками
КУЗЬМИНЫХ ТАТЬЯНА
координатор проекта АМС,
эксперт в строительной сфере и юридических
тонкостях ИЖС, ведущий специалист по работе
с заказчиками
эксперт в строительной сфере и юридических
тонкостях ИЖС, ведущий специалист по работе
с заказчиками